Каталог
Мебель для ванной
TREND тумба с раковиной
CUBE тумба с раковиной
TOP тумба
Тумбы
Мебель для стиральной машины
Столешницы
Пеналы
Зеркала и освещение
Зеркала из массива
Зеркала с LED подсветкой
Зеркала в МДФ раме
Зеркальные шкафчики
LED светильники
Раковины
Проекты
Комплектация
Выставки и СМИ
Контакты
+7 921 776-50-78
Корзина
…
Каталог
Мебель для ванной
TREND тумба с раковиной
CUBE тумба с раковиной
TOP тумба
Тумбы
Мебель для стиральной машины
Столешницы
Пеналы
Зеркала и освещение
Зеркала из массива
Зеркала с LED подсветкой
Зеркала в МДФ раме
Зеркальные шкафчики
LED светильники
Раковины
Проекты
Комплектация
Выставки и СМИ
Контакты
+7 921 776-50-78
Поиск по сайту...
…
Загрузка содержимого корзины…
Ванная мебель в ЖК Три ветра
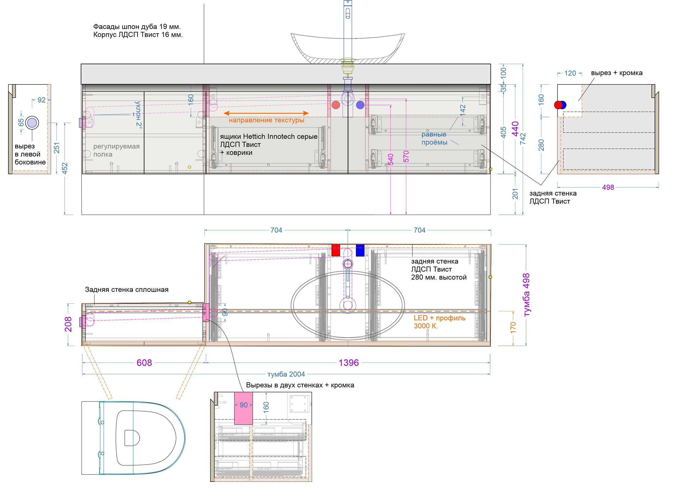
Подвесная раковина 2,5 метра на заказ
Ванная мебель в ЖК Премьер Палас
Мы на связи
instagram
whatsapp
map
phone